| 価格 |
3,190万円 | 交通 | 志真志ハイツ入口バス停下車 徒歩6分 |
|---|---|---|---|
| 間取り | 3LDK | 所在地 | 沖縄県宜野湾市志真志2丁目 20-15 |
| 専有面積 | 82.87㎡ | 築年月(築年数) | 1992年 8月 (築33年) |
中古マンション
| 価格 |
3,190万円 | 交通 | 志真志ハイツ入口バス停下車 徒歩6分 |
|---|---|---|---|
| 間取り | 3LDK | 所在地 | 沖縄県宜野湾市志真志2丁目 20-15 |
| 専有面積 | 82.87㎡ | 築年月(築年数) | 1992年 8月 (築33年) |
「利回り」は、当該不動産の1年間の予定賃料収入の不動産取得対価に対する割合であり、公租公課その他当該物件を維持するために必要な費用の控除前のものです。
また、予定賃料収入が確実に得られる事を保証するものではありません。

\リノベシリーズ/今回は、高層階角部屋の一室!駐車場はなんと2台♪ペット飼育も可能♪80㎡超えの室内リフォーム物件です\(^o^)/南側と西側、計2ヶ所バルコニーと、高層階なので眺望も良好♪リフォーム完成が待ち遠しいですね♪
※地図上の物件位置は近隣に物件が所在することを表すものであり、実際の物件所在地とは異なる場合がございます。
0120-947-871
営業時間:9:00~17:00 / 定休日:※水曜日(お盆・GW・12/30-1/3は、お休みです)
| 所在地 | 沖縄県宜野湾市志真志2丁目 20-15 | ||
|---|---|---|---|
| 交通 | 志真志ハイツ入口バス停下車 徒歩6分 | ||
| 価格 | 3,190万円 | 管理費 | 12,000円 |
| 修繕積立金 | 9,100円 | 修繕積立基金 | |
| 所在階/階数 | 8階 / 10階建 | 築年月(築年数) | 1992年 8月(築33年) |
| 専有面積 | 82.87㎡ | バルコニー面積 | 39.30㎡ |
| 建物構造 | 鉄筋コンクリート(RC) | 主要採光面 | 西 |
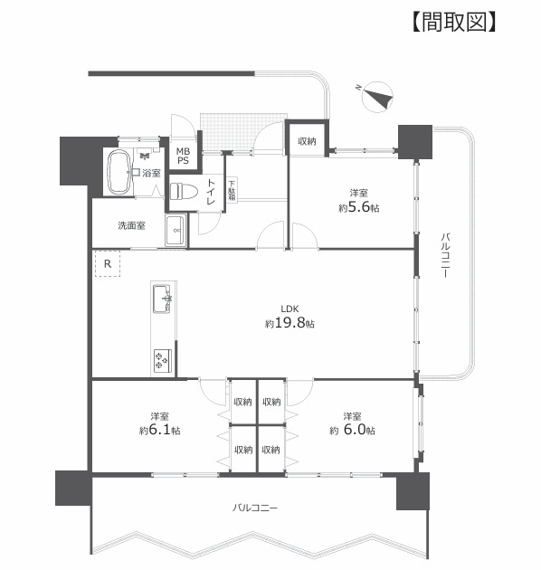
| 間取り |
3LDK
LDK 19.8帖 / 洋室 6.1帖 / 洋室 6.0帖 / 洋室 5.6帖 / |
||
| リフォーム | 内装リフォーム:2026年1月完成予定 | ||
| 引渡し | 相談 | ||
| 管理 | 管理形態:自主管理 | ||
| 土地権利 | 所有権 | 用途地域 | 第一種中高層住居専用地域 |
| 土地の権利形態 | |||
| 駐車場 | 空有 | ||
| 設備条件 | エレベーター / リフォーム / 室内洗濯機置場 / システムキッチン / バス・トイレ別 / 温水洗浄便座 | ||
| その他条件 | |||
| 備考 |
2026年1月完成予定! ◆ ユニットバス新規交換 ◆ 洗面化粧台新規交換 ◆ 温水洗浄機能付トイレ新規交換 ◆ 建具新規交換 ◆ クッションフロア張替 ◆ クロス張替 ◆ ダウンライト設置 ◆ フローリング張替 ◆ カーテンレール交換 ◆ 玄関ドア交換 ◆ ハウスクリーニング 他 |
||
| 周辺の学校 | |||
| 取引態様 | 仲介 | 物件番号 | 98691497 |
| 情報公開日 | 2025年11月4日 | 次回更新予定日 | 2025年11月18日 |
| 取引条件の有効期限 | 2025年11月18日 | ||
| 取扱い会社 |
株式会社ホカマ 〒904-0101 沖縄県中頭郡北谷町字上勢頭667-1 沖縄県知事(2)第4657号 (公社)沖縄県宅地建物取引業協会 LIXIL不動産ショップ 加盟店 |
||
0120-947-871
営業時間:9:00~17:00 / 定休日:※水曜日(お盆・GW・12/30-1/3は、お休みです)
| 所在地 | 物件の住所を表示。(詳細住所は表示していない場合もある) | ||
|---|---|---|---|
| 交通 | 物件(部屋)の沿線駅・バス停を表示。(複数駅・バス停の利用が可能な場合は最大3件まで) | ||
| 間取り/詳細 | 数字は居室数を表示。LDKはそれぞれ「リビング」「ダイニング」「キッチン」、S(納戸)とは「納戸」「サービスルーム」「マルチルーム」「フリールーム」など建築基準法第28条に適合していないため、居室と認められない納戸その他の部分を表す。 | ||
| 価格 | 販売されている住戸の価格を表示。仲介手数料は含まない。 | ||
| 管理費 | 共同住宅の設備その他共用部分の維持および管理をするために必要な費用を表示。 | ||
| 修繕積立金 | 共用部分の修繕のために積立てる金額を表示。 | ||

中古マンション
| 価格 | 3,190 万円 | ||
|---|---|---|---|
| 間取り | 3LDK | 築年月(築年数) | 1996年 1月 (築29年) |
| 専有面積 | 70.74㎡ | 階数 | 6階建 |
| 住所 | 沖縄県宜野湾市新城2丁目30 | ||
| 交通 |
|
||
【展望】